|
不锈钢闸阀,不锈钢法兰闸阀
阀门类型:不锈钢闸阀 阀门型号:Z41W 尺寸规格:DN15-800mm 安装形式:法兰式 压力等级:1.0-16MPa 主体材质:铸钢WCB,碳钢CS,不锈钢304,316等, 产品铭牌:浦蝶
不锈钢闸阀产品特点 结构紧凑、设计合理、阀门刚性好、通道流畅,流量系数小 密封面采用不锈钢和硬质合金,使用寿命长 采用柔性石墨填料、密封可靠,操作轻便灵活 驱动方式为手动、气动、电动、齿轮传动 结构形式为弹性楔式单闸板、刚性楔式单闸板双闸板型式
不锈钢闸阀执行标准 设计规范:GB/T 12234 结构长度:GB/T 12221 连接法兰:JB/T 79 试验与检验:JB/T 9092 压力-温度:GB/T 9131 产品标识:GB/T 12220
不锈钢闸阀,不锈钢法兰闸阀性能规范
|
型号 |
公称压力 (MPa) |
实验压力 |
工作温度(℃) |
适用介质 |
|
强度水(MPa) |
密封(水)空气(MPa) |
低压密封空气(MPa) |
|
Z41H-16C Z41W-16P(R) |
1.6 |
2.4 |
1.8 |
0.6 |
≤425 |
硝酸类 |
|
Z41W-25P(R) |
2.5 |
3.8 |
2.8 |
0.6 |
≤200 |
醋酸类 |
|
Z41W-40P(R) |
4.0 |
6.0 |
4.4 |
0.6 |
≤200 |
硝酸类 |
|
Z41W-64P(R) |
6.4 |
9.6 |
7.0 |
0.6 |
≤200 |
醋酸类 |
不锈钢闸阀,不锈钢法兰闸阀材质
|
阀体/阀盖 |
ZGICr18Ni9Ti |
ZG00Cr18Ni10 |
ZG1Cr18Ni12M02Ti |
ZG00Cr17Ni14M02 |
WCB |
|
零件名称 |
ZGICr18Ni9Tit系列 |
ZG00Cr18Ni10系列 |
ZG1Cr18Ni12M02Ti系列 |
ZG00Cr17Ni14M02系列 |
WCB系列 |
|
闸板 |
ZGICr18Ni9Ti |
ZG00Cr18Ni10 |
ZG1Cr18Ni12M02Ti |
ZG00Cr17Ni14M02 |
1Cr13 |
|
阀杆 |
1Cr18Ni9Ti |
00Cr18Ni10 |
1Cr18Ni12M02Ti |
00Cr17Ni14M02 |
1Cr13 |
|
填料 |
PTFE编织 |
PTFE编织 |
PTFE编织 |
PTFE编织 |
石墨 |
|
垫片 |
304L+PTFE |
304L+PTFE |
316+PTFE |
316L+PTFE |
石墨 |
|
压盖 |
ZGICr18Ni9Ti |
ZG00Cr18Ni10 |
ZG1Cr18Ni12M02Ti |
ZG00Cr17Ni14M02系列 |
WCB |
|
填料压环 |
1Cr18Ni9Ti |
00Cr18Ni10 |
1Cr18Ni12M02Ti |
00Cr17Ni14M02 |
1Cr13 |
|
螺栓 |
1Cr17Ni2 |
1Cr17Ni2 |
1Cr17Ni2 |
1Cr17Ni2 |
35CrMoA |
|
螺母 |
1Cr18Ni9Ti |
1Cr18Ni9Ti |
1Cr18Ni9Ti |
1Cr18Ni9Ti |
45 |
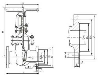
不锈钢闸阀图纸:

不锈钢闸阀,不锈钢法兰闸阀-1.6MPa主要连接尺寸
|
尺寸 |
DN |
15 |
20 |
25 |
32 |
40 |
50 |
65 |
80 |
100 |
125 |
150 |
200 |
250 |
300 |
350 |
400 |
450 |
500 |
600 |
|
L |
mm |
130 |
150 |
160 |
180 |
200 |
250 |
265 |
280 |
300 |
325 |
350 |
400 |
450 |
500 |
550 |
600 |
650 |
700 |
800 |
|
H |
mm |
175 |
180 |
210 |
210 |
350 |
358 |
373 |
435 |
500 |
614 |
674 |
818 |
1225 |
1415 |
1630 |
1780 |
2050 |
2181 |
2599 |
|
W |
mm |
180 |
180 |
200 |
200 |
200 |
240 |
240 |
280 |
320 |
360 |
360 |
400 |
450 |
500 |
500 |
600 |
720 |
720 |
720 |
Z41W不锈钢闸阀,不锈钢法兰闸阀-2.5MPa主要连接尺寸
|
尺寸 |
DN |
15 |
20 |
25 |
32 |
40 |
50 |
65 |
80 |
100 |
125 |
150 |
200 |
250 |
300 |
350 |
400 |
450 |
500 |
600 |
|
L |
mm |
130 |
150 |
160 |
180 |
200 |
250 |
265 |
280 |
300 |
325 |
350 |
400 |
450 |
500 |
550 |
600 |
650 |
700 |
800 |
|
H |
mm |
175 |
180 |
210 |
210 |
350 |
358 |
373 |
435 |
500 |
614 |
674 |
818 |
1225 |
1415 |
1630 |
1780 |
2050 |
2181 |
2599 |
|
W |
mm |
180 |
180 |
200 |
200 |
200 |
240 |
240 |
280 |
320 |
360 |
360 |
400 |
450 |
500 |
500 |
600 |
720 |
720 |
720 |
4.0MPa主要连接尺寸
|
尺寸 |
DN |
15 |
20 |
25 |
32 |
40 |
50 |
65 |
80 |
100 |
125 |
150 |
200 |
250 |
300 |
350 |
400 |
|
L |
mm |
130 |
150 |
160 |
180 |
200 |
250 |
280 |
310 |
350 |
400 |
450 |
550 |
650 |
750 |
850 |
950 |
|
H |
mm |
175 |
180 |
210 |
210 |
350 |
358 |
373 |
435 |
500 |
614 |
674 |
818 |
1225 |
1415 |
1630 |
1780 |
|
W |
mm |
180 |
180 |
200 |
200 |
200 |
240 |
240 |
280 |
320 |
360 |
360 |
400 |
450 |
500 |
500 |
600 |
6.4MPa主要连接尺寸
|
尺寸 |
DN |
15 |
20 |
25 |
32 |
40 |
50 |
65 |
80 |
100 |
125 |
150 |
200 |
250 |
300 |
350 |
400 |
|
L |
mm |
170 |
190 |
210 |
230 |
240 |
250 |
280 |
320 |
350 |
400 |
450 |
550 |
650 |
750 |
850 |
950 |
|
H |
mm |
175 |
180 |
210 |
230 |
350 |
359 |
373 |
435 |
500 |
614 |
674 |
818 |
970 |
1145 |
1280 |
1450 |
|
W |
mm |
120 |
120 |
140 |
160 |
200 |
240 |
280 |
320 |
360 |
400 |
400 |
450 |
560 |
640 |
800 |
800 |
10.0MPa主要连接尺寸
|
尺寸 |
DN |
15 |
20 |
25 |
32 |
40 |
50 |
65 |
80 |
100 |
125 |
150 |
200 |
250 |
|
L |
mm |
170 |
190 |
210 |
230 |
240 |
250 |
280 |
310 |
350 |
400 |
450 |
550 |
650 |
|
H |
mm |
175 |
180 |
210 |
230 |
350 |
359 |
373 |
435 |
500 |
614 |
674 |
818 |
970 |
|
W |
mm |
120 |
120 |
160 |
180 |
240 |
280 |
320 |
360 |
400 |
450 |
560 |
640 |
720 |
16.0MPa主要连接尺寸
|
尺寸 |
DN |
15 |
20 |
25 |
32 |
40 |
50 |
65 |
80 |
100 |
125 |
150 |
200 |
|
L |
mm |
170 |
190 |
210 |
230 |
240 |
300 |
340 |
390 |
450 |
525 |
600 |
750 |
|
H |
mm |
175 |
180 |
210 |
230 |
350 |
359 |
373 |
435 |
500 |
614 |
674 |
818 |
|
W |
mm |
120 |
120 |
140 |
160 |
200 |
240 |
280 |
320 |
360 |
400 |
400 |
450 |
不锈钢闸阀,不锈钢法兰闸阀图片:

售后订购: 1:咨询订购产品需提供产品类别,型号,规格,材质种类,压力等级,技术要求,也可提供产品的旧图给客服人员,以便准确获取报价及供货周期, 2:浦蝶公司销售产品均实行产品质量三包,质保期内包退,包换,保修, 3:产品参数,尺寸,图片仅供用户选型参考,如有特殊需求请及时提出,所有产品报价有效期为1个月(报价日起算),请及时确认沟通. |